Casa semindipendente in vendita

Assisi, Via alcide de gasperi - Santa Maria Degli Angeli
€ 80.000
4 locali 4 locali
110 Mq 110 Mq
3 bagni 3 bagni

Casa semindipendente in vendita

Assisi, Via alcide de gasperi - Santa Maria Degli Angeli

Descrizione annuncio

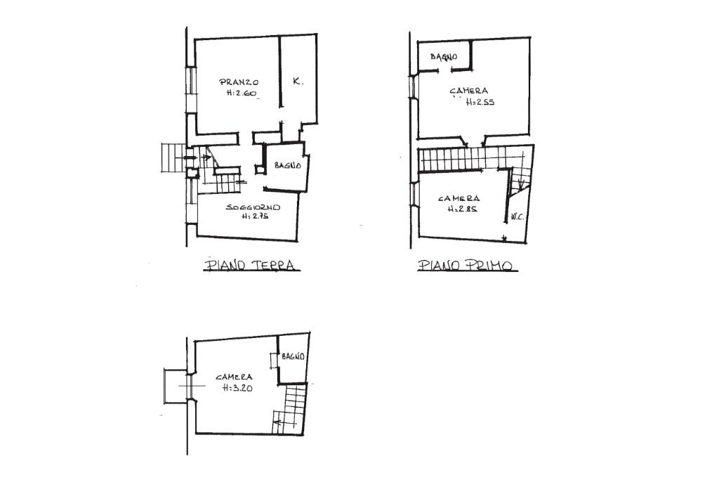
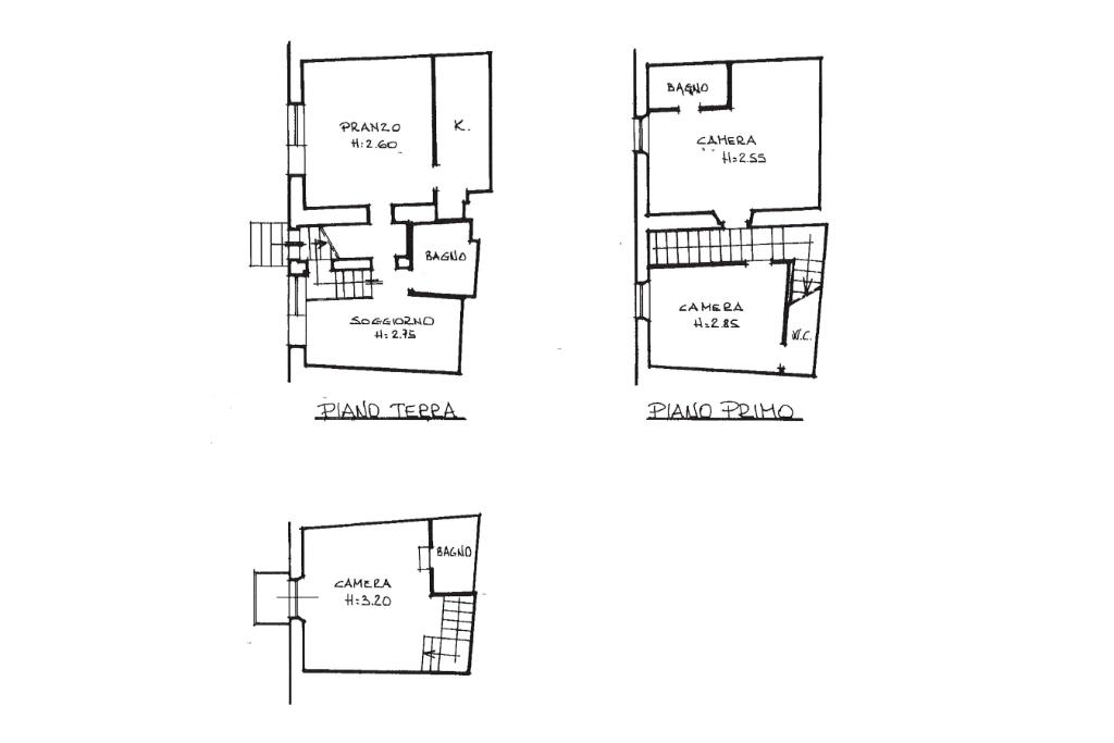
Nel cuore di Santa Maria degli Angeli, a pochi passi dalla Basilica, disponiamo di cielo terra con ingresso indipendente disposto su tre livelli.

Piano terra con soggiorno, cucina e bagno; primo piano con due camere da letto, entrambe con bagno interno; secondo piano con camera matrimoniale, bagno e balcone

Completa la proprietà corte privata di 40 mq

Mostra tutto

Nelle vicinanze

Trasporto pubblico Trasporto pubblico
stazione di Assisi
stazione di Assisi
700 m
Bastia Umbra
Bastia Umbra
2,9 Km
Trasporto pubblico
100 m
Assisi, Santa Maria degli Angeli
Assisi, Santa Maria degli Angeli
730 m
Ricariche auto elettriche Ricariche auto elettriche
Eneldrive Santa Maria degli Angeli
150 m
Driwe c/o CTF WELLNESS
750 m
Assisi Vittorio Emanuele II
2,7 Km
Assisi Marconi
3,0 Km
Scuole Scuole
Scuola Media statale Giovanni XXIII
90 m
Scuola Materna Statale
240 m
Scuola Elementare e Media Statale
270 m
Istituto Tecnico Industriale e Istituto Tecnico Professionale
410 m
Facoltà di Economia Del Turismo
740 m
Farmacia Farmacia
Farmacia Angelini
220 m
Farmacia Comunale
470 m
Parafarmacia Conad
1,8 Km
Parafarmacia
2,4 Km
Angelini
2,4 Km
Supermercati Supermercati
Conad City
90 m
Todis
520 m
Emi
550 m
Conad SuperStore
590 m
Sapore Di Mare Pescheria
720 m
Negozi Negozi
Alimentari
130 m
Alimentari Marilena
140 m
Pasticceria Sandro
530 m
Negozi
580 m
Original Marines
590 m
Bar Bar
Bar Pasticceria Lollini
80 m
New My Way
110 m
Bar
730 m
Bar della Stazione
740 m
Bar Rocchi
780 m
Ristoranti Ristoranti
Pizzamia
50 m
La Rosa Trattoria
100 m
New My Way
100 m
Trattoria degli Angeli
240 m
New Generation Food
270 m
Mostra tutto

Caratteristiche

Rif.:
61153201
Piano:
3 di 3 (Piano su più livelli)
Balconi:
1
Camere da letto:
3
Arredamento:
Assente
Condizionamento:
Assente
Mostra tutto
Prezzo Prezzo
€ 80.000
Rata mutuo Rata mutuo
€ 377 / mese
Spese annue Spese annue
€ 0
Proponi il tuo prezzoProponi il tuo prezzo
Immobile valutato con T·Valuta

Classe Energetica

G
G
G
G
G
G
G
G
G
EP globale non rinnovabile:
1.00 kW h/m² anno
EP globale rinnovabile:
1.00 kW h/m² anno
EP invernale del fabbricato:
EP estiva del fabbricato:
Anno di costruzione:
1950
Riscaldamento:
Autonomo
Tipo impianto:
A radiatori
Tipo alimentazione:
Metano

Ti interessa visionare l'immobile?

Fissa un appuntamento  Fissa un appuntamento

Richiedi informazioni

Clicca su Leggi per aprire l'informativa
* Questi campi sono obbligatori

Calcola il tuo mutuo

Semplice e senza impegno
Anticipo

( % )
Mutuo

( % )

pochi semplici passi

inserisci i tuoi dati
Questionario completato
Grazie per aver richiesto un appuntamento senza impegno con un nostro Consulente del Credito e Assicurativo.

Hai inserito correttamente tutti i dati necessari e a breve riceverai una e-mail con un link da convalidare per inviare i tuoi dati.
Affiliato
Studio Assisi Srls
Via Los Angeles, 50 06081 Assisi (PG)

Il nostro staff


  • Cristiano Gnavolini
    Affiliato

  • Giuliano Rossi
    Responsabile

  • Marco Fimiani
    Responsabile

  • Valentina Bangoni
    Coordinatrice

  • Francesca Fimiani
    Collaboratrice

  • Andrea Micco
    Collaboratore

  • Dorian Mustafa
    Collaboratore

  • Luca Passeri
    Collaboratore
Via Los Angeles, 50 06081 Assisi (PG)
Zona: S.M. degli Angeli-Petrignano-Palazzo-Rivotorto-Tordandrea-Castelnuovo-Capodacqua
Mostra su mappa
Orari: lunedì-venerdì: 09.00 - 13.00 // 15.30 - 20.00 sabato: 09.00 - 13.00
Affiliato
Studio Assisi Srls
Via Los Angeles, 50 06081 Assisi (PG)

2026 Tecnocasa Franchising S.p.A. - P. IVA 08365160152 - Via Monte Bianco 60/A 20089 Rozzano (MI). Ogni agenzia ha un proprio titolare ed è autonoma. Privacy policy | Policy utilizzo | Cookie policy