Casa semindipendente in vendita

Assisi, Via incerta - Petrignano
€ 98.000
Prezzo aggiornato
3 locali 3 locali
120 Mq 120 Mq
2 bagni 2 bagni

Casa semindipendente in vendita

Assisi, Via incerta - Petrignano

Descrizione annuncio

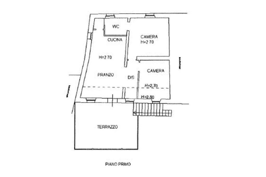
In zona centrale di Petrignano di Assisi disponiamo di semindipendente con ingresso autonomo ristrutturata nel 2010 e disposta su due livelli. Si accede all'abitazione tramite scala esterna dove troviamo subito un bellissimo terrazzo abitabile coperto di 35 mq. L'immobile si articola in soggiorno/cucina, due camere matrimoniali, bagno finestrato con doccia. Al piano terra abbiamo un fondo di 40 mq con ingresso autonomo diviso in due vani oltre bagno.

Completa la proprietà corte privata di 100 mq.

Zanzariere – Infissi in alluminio con doppio vetro – Aria condizionata – Stufa a pellets idro collegata ai termosifoni

Mostra tutto

Nelle vicinanze

Ricariche auto elettriche Ricariche auto elettriche
Eneldrive Aeroporto Internazionale dell'Umbria
2,9 Km
Scuole Scuole
Scuola Elementare Statale Luigi Masi
290 m
Scuola Media Statale Francesco Pennacchi
310 m
Farmacia Farmacia
Farmacia San Pietro
170 m
Farmacia Bizzarri
2,6 Km
Supermercati Supermercati
Super Sigma
200 m
Conad Petrignano
550 m
Maury's
2,9 Km
Negozi Negozi
Negozi
2,0 Km
Emi
2,0 Km
Bar Bar
Bar
110 m
Ristoranti Ristoranti
Ristorante Trancanelli
110 m
Relais Colle del Sole
2,9 Km
Mostra tutto

Caratteristiche

Rif.:
61130505
Piano:
1 di 2 (Piano su più livelli)
Terrazzi:
1
Camere da letto:
2
Arredamento:
Assente
Condizionamento:
Autonomo
Mostra tutto
Prezzo Prezzo
€ 98.000
Rata mutuo Rata mutuo
€ 462 / mese
Spese annue Spese annue
€ 0
Proponi il tuo prezzoProponi il tuo prezzo

Classe Energetica

G
G
G
G
G
G
G
G
G
EP globale non rinnovabile:
0.00 kW h/m² anno
EP globale rinnovabile:
0.00 kW h/m² anno
EP invernale del fabbricato:
EP estiva del fabbricato:
Anno di costruzione:
1950
Riscaldamento:
Autonomo
Tipo impianto:
A radiatori
Tipo alimentazione:
Metano

Prezzo ridotto di €1 (7%%)

Ti interessa visionare l'immobile?

Fissa un appuntamento  Fissa un appuntamento

Richiedi informazioni

Clicca su Leggi per aprire l'informativa
* Questi campi sono obbligatori

Calcola il tuo mutuo

Semplice e senza impegno
Anticipo

( % )
Mutuo

( % )

pochi semplici passi

inserisci i tuoi dati
Questionario completato
Grazie per aver richiesto un appuntamento senza impegno con un nostro Consulente del Credito e Assicurativo.

Hai inserito correttamente tutti i dati necessari e a breve riceverai una e-mail con un link da convalidare per inviare i tuoi dati.
Affiliato
Studio Assisi Srls
Via Los Angeles, 50 06081 Assisi (PG)

Il nostro staff


  • Cristiano Gnavolini
    Affiliato

  • Giuliano Rossi
    Responsabile

  • Marco Fimiani
    Responsabile

  • Valentina Bangoni
    Coordinatrice

  • Francesca Fimiani
    Collaboratrice

  • Andrea Micco
    Collaboratore

  • Dorian Mustafa
    Collaboratore

  • Luca Passeri
    Collaboratore
Via Los Angeles, 50 06081 Assisi (PG)
Zona: S.M. degli Angeli-Petrignano-Palazzo-Rivotorto-Tordandrea-Castelnuovo-Capodacqua
Mostra su mappa
Orari: lunedì-venerdì: 09.00 - 13.00 // 15.30 - 20.00 sabato: 09.00 - 13.00
Affiliato
Studio Assisi Srls
Via Los Angeles, 50 06081 Assisi (PG)

2026 Tecnocasa Franchising S.p.A. - P. IVA 08365160152 - Via Monte Bianco 60/A 20089 Rozzano (MI). Ogni agenzia ha un proprio titolare ed è autonoma. Privacy policy | Policy utilizzo | Cookie policy