Rustico in vendita

Assisi, Frazione Paradiso
€ 39.000
Prezzo aggiornato
4 locali 4 locali
127 Mq 127 Mq
2 bagni 2 bagni

Rustico in vendita

Assisi, Frazione Paradiso

Descrizione annuncio

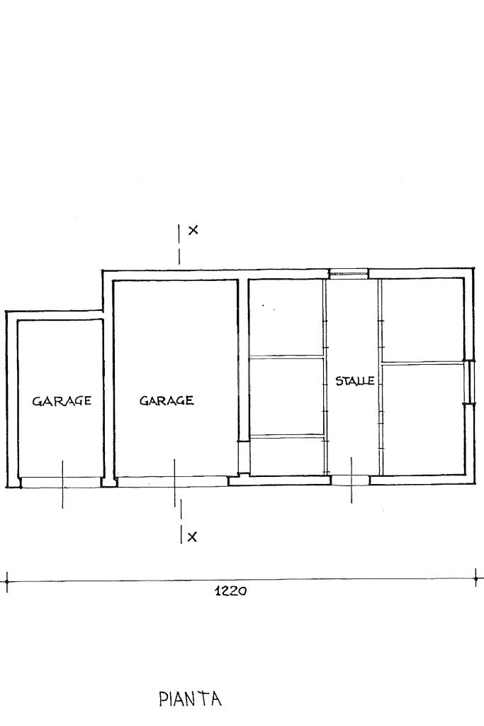
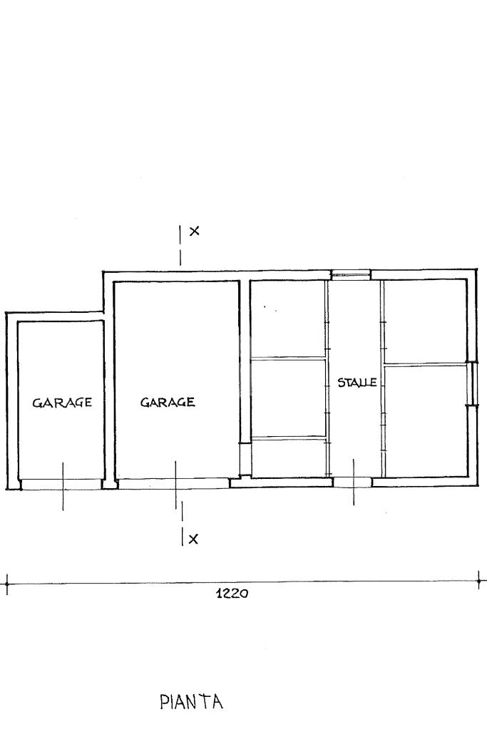
Nel cuore del suggestivo paesaggio umbro, a soli 10 minuti dal centro storico di Assisi, in Località Paradiso, disponiamo di annessi con una superficie di 127 mq con la capacità di fare cambio d'uso a destinazione abitativa. Possibilità di ampliamento fino a 250 mq di abitazione. L'annesso è circondato da un ampio terreno di 2000 mq e due ulteriori terreni staccati nelle immediate vicinanze di totali 2.000 mq. Ideale per chi desidera vivere immerso nella natura, pur rimanendo vicino ai servizi e alle attrazioni culturali di Assisi. Questa proprietà rappresenta un'opportunità unica per chi cerca un progetto di ristrutturazione in una delle zone più affascinanti dell'Umbria.

Mostra tutto

Nelle vicinanze

Trasporto pubblico Trasporto pubblico
Trasporto pubblico
2,8 Km
Ristoranti Ristoranti
Asteria del Pievano
910 m
Bar Ristorante da Giovannino
1,5 Km
Moro di Ronca
1,6 Km
Mostra tutto

Caratteristiche

Rif.:
61117905
Piano:
Terra con giardino di 1
Totale piani:
1
Box:
1
Camere da letto:
3
Arredamento:
Assente
Mostra tutto
Prezzo Prezzo
€ 39.000
Rata mutuo Rata mutuo
€ 184 / mese
Spese annue Spese annue
€ 0
Proponi il tuo prezzoProponi il tuo prezzo

Classe Energetica

Questo immobile è esente da classe energetica
Anno di costruzione:
1900
Riscaldamento:
Assente

Prezzo ridotto di €1 (8%%)

Ti interessa visionare l'immobile?

Fissa un appuntamento  Fissa un appuntamento

Richiedi informazioni

Clicca su Leggi per aprire l'informativa
* Questi campi sono obbligatori

Calcola il tuo mutuo

Semplice e senza impegno
Anticipo

( % )
Mutuo

( % )

pochi semplici passi

inserisci i tuoi dati
Questionario completato
Grazie per aver richiesto un appuntamento senza impegno con un nostro Consulente del Credito e Assicurativo.

Hai inserito correttamente tutti i dati necessari e a breve riceverai una e-mail con un link da convalidare per inviare i tuoi dati.
Affiliato
Studio Assisi Srls
Via Los Angeles, 50 06081 Assisi (PG)

Il nostro staff


  • Cristiano Gnavolini
    Affiliato

  • Giuliano Rossi
    Responsabile

  • Marco Fimiani
    Responsabile

  • Valentina Bangoni
    Coordinatrice

  • Francesca Fimiani
    Collaboratrice

  • Andrea Micco
    Collaboratore

  • Luca Passeri
    Collaboratore
Via Los Angeles, 50 06081 Assisi (PG)
Zona: S.M. degli Angeli-Petrignano-Palazzo-Rivotorto-Tordandrea-Castelnuovo-Capodacqua
Mostra su mappa
Orari: lunedì-venerdì: 09.00 - 13.00 // 15.30 - 20.00 sabato: 09.00 - 13.00
Affiliato
Studio Assisi Srls
Via Los Angeles, 50 06081 Assisi (PG)

2026 Tecnocasa Franchising S.p.A. - P. IVA 08365160152 - Via Monte Bianco 60/A 20089 Rozzano (MI). Ogni agenzia ha un proprio titolare ed è autonoma. Privacy policy | Policy utilizzo | Cookie policy