Casa semindipendente in vendita

Assisi, Frazione San Presto - San Presto
€ 289.000
Prezzo aggiornato
7 locali 7 locali
260 Mq 260 Mq
4 bagni 4 bagni

Casa semindipendente in vendita

Assisi, Frazione San Presto - San Presto

Descrizione annuncio

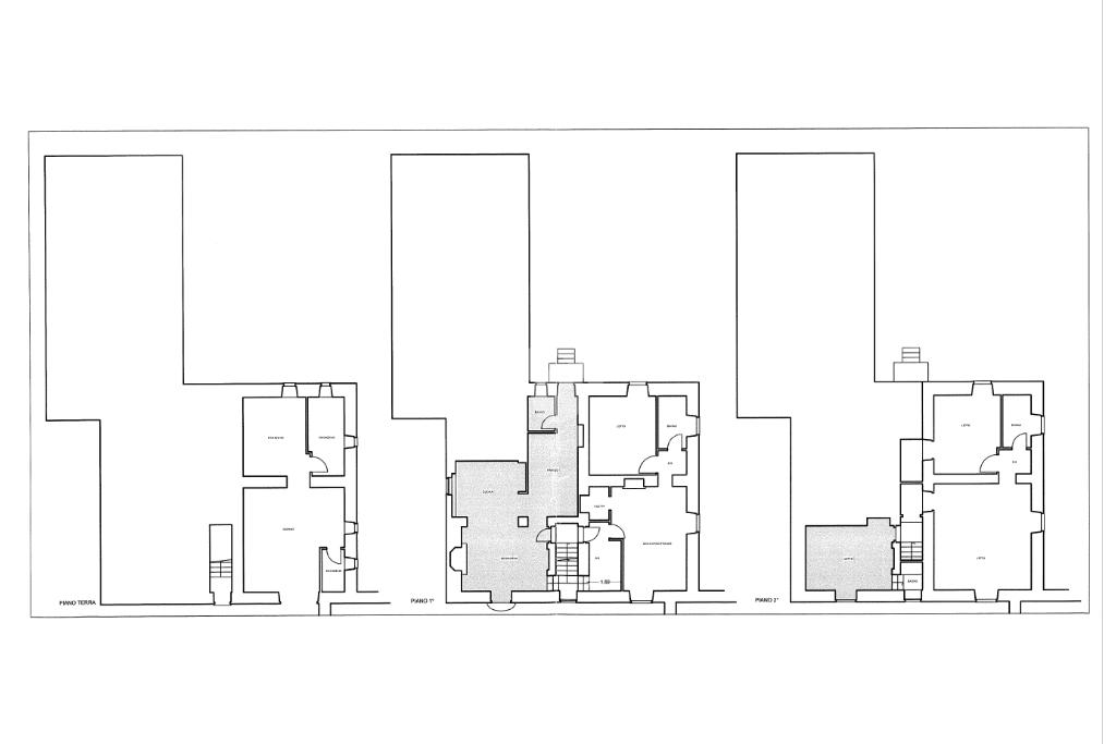
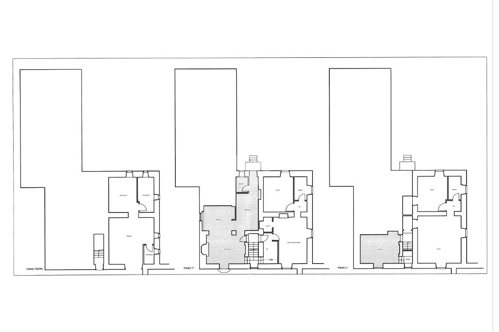
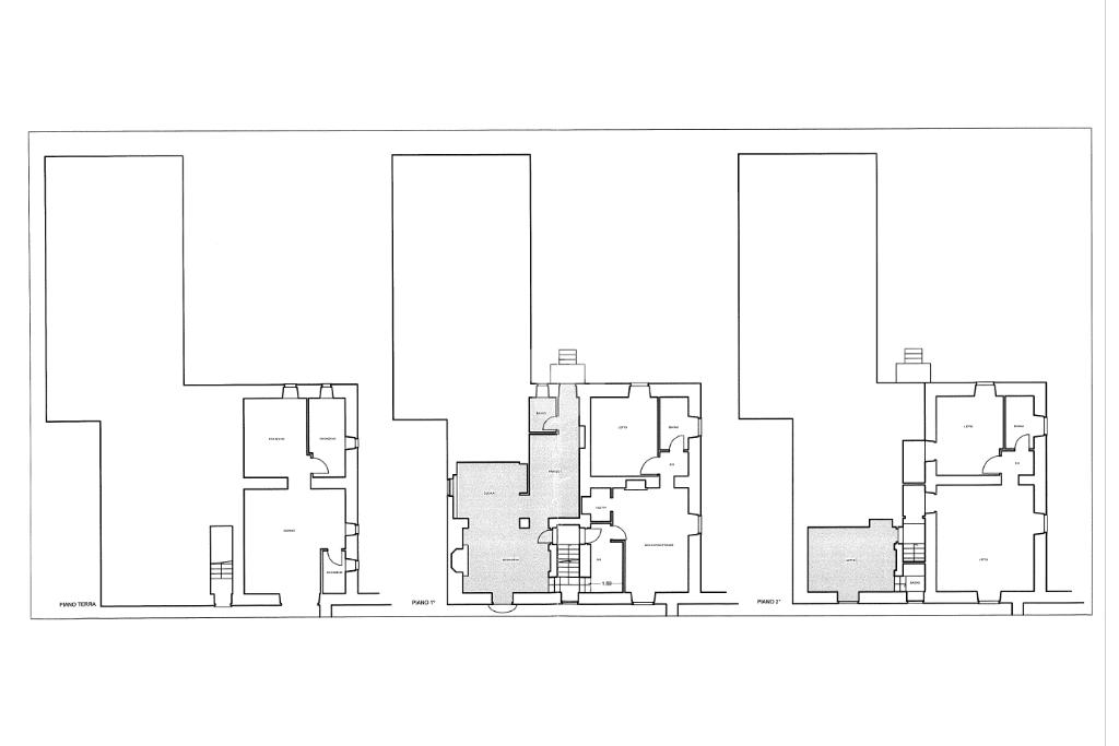
In posizione panoramica, nella frazione di San Presto, a 15 minuti dal centro storico di Assisi, disponiamo di caratteristica semindipendente in pietra ristrutturata negli anni 2000 e composta da tre unità abitative. Al piano terra abbiamo fondi e garage per 63 mq con possibilità di fare cambio d'uso a civile abitazione. La prima unità si articola in due livelli, presenta finiture caratteristiche con travi in legno e pietra a vista ed è composta da soggiorno con angolo cottura, camera matrimoniale con wc, bagno finestrato con doccia e corte privata di 200 mq con giardino ed ampio lastrico. La seconda unità è posta al piano primo e si compone di soggiorno/cucina con balcone, camera matrimoniale, bagno finestrato con doccia. Piano secondo con terza unità composta da soggiorno/cucina, camera matrimoniale, bagno finestrato con doccia e ripostiglio.

Due appartamenti sono attualmente locati. Corte comune adibita a posti auto. La posizione tranquilla e immersa nel verde garantisce un'atmosfera serena, pur essendo a breve distanza dalle meraviglie storiche e culturali di Assisi.

Mostra tutto

Nelle vicinanze

Trasporto pubblico Trasporto pubblico
Trasporto pubblico
20 m
Ristoranti Ristoranti
Il Noceto
1,1 Km
Mostra tutto

Caratteristiche

Rif.:
61113515
Piano:
3 di 3 (Piano su più livelli)
Box:
1
Camere da letto:
3
Arredamento:
Assente
Condizionamento:
Assente
Mostra tutto
Prezzo Prezzo
€ 289.000
Rata mutuo Rata mutuo
€ 1.349 / mese
Spese annue Spese annue
€ 0
Proponi il tuo prezzoProponi il tuo prezzo

Classe Energetica

G
G
G
G
G
G
G
G
G
EP globale non rinnovabile:
0.00 kW h/m² anno
EP globale rinnovabile:
0.00 kW h/m² anno
EP invernale del fabbricato:
EP estiva del fabbricato:
Anno di costruzione:
1900
Riscaldamento:
Autonomo
Tipo impianto:
A radiatori
Tipo alimentazione:
GPL

Prezzo ridotto di €1 (3%%)

Ti interessa visionare l'immobile?

Fissa un appuntamento  Fissa un appuntamento

Richiedi informazioni

Clicca su Leggi per aprire l'informativa
* Questi campi sono obbligatori

Calcola il tuo mutuo

Semplice e senza impegno
Anticipo

( % )
Mutuo

( % )

pochi semplici passi

inserisci i tuoi dati
Questionario completato
Grazie per aver richiesto un appuntamento senza impegno con un nostro Consulente del Credito e Assicurativo.

Hai inserito correttamente tutti i dati necessari e a breve riceverai una e-mail con un link da convalidare per inviare i tuoi dati.
Affiliato
Studio Assisi Srls
Via Los Angeles, 50 06081 Assisi (PG)

Il nostro staff


  • Cristiano Gnavolini
    Affiliato

  • Giuliano Rossi
    Responsabile

  • Marco Fimiani
    Responsabile

  • Valentina Bangoni
    Coordinatrice

  • Francesca Fimiani
    Collaboratrice

  • Andrea Micco
    Collaboratore

  • Dorian Mustafa
    Collaboratore

  • Luca Passeri
    Collaboratore
Via Los Angeles, 50 06081 Assisi (PG)
Zona: S.M. degli Angeli-Petrignano-Palazzo-Rivotorto-Tordandrea-Castelnuovo-Capodacqua
Mostra su mappa
Orari: lunedì-venerdì: 09.00 - 13.00 // 15.30 - 20.00 sabato: 09.00 - 13.00
Affiliato
Studio Assisi Srls
Via Los Angeles, 50 06081 Assisi (PG)

2026 Tecnocasa Franchising S.p.A. - P. IVA 08365160152 - Via Monte Bianco 60/A 20089 Rozzano (MI). Ogni agenzia ha un proprio titolare ed è autonoma. Privacy policy | Policy utilizzo | Cookie policy