Casa indipendente in vendita

Assisi, Via dell'arce - Castelnuovo
€ 230.000
10 locali 10 locali
300 Mq 300 Mq
1 bagno 1 bagno

Casa indipendente in vendita

Assisi, Via dell'arce - Castelnuovo

Descrizione annuncio

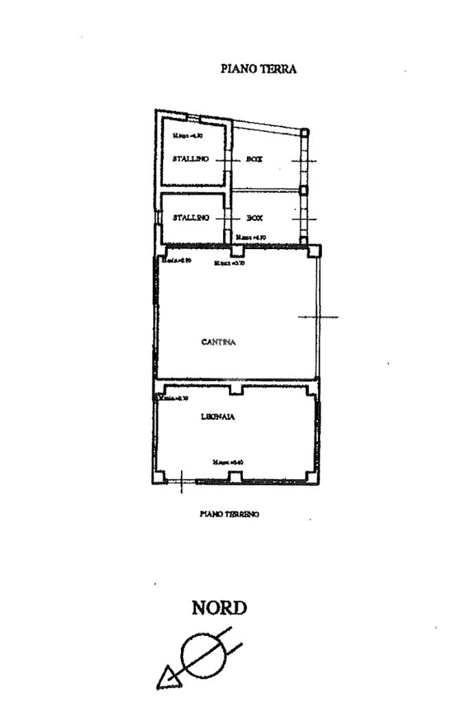
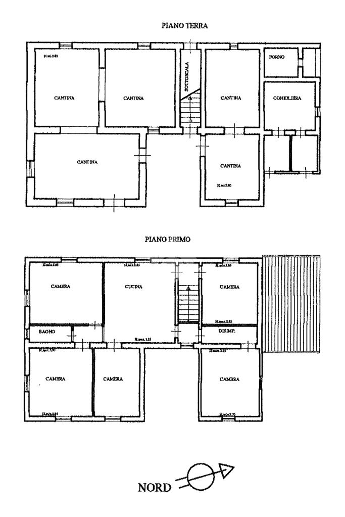
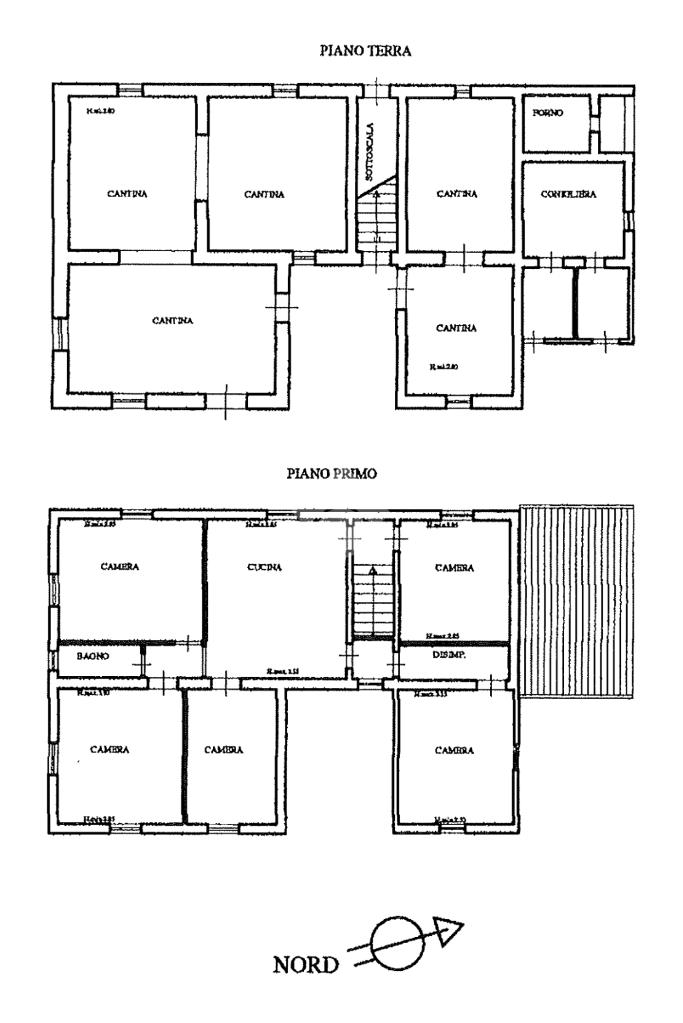
In zona tranquilla e pianeggiante di Castelnuovo disponiamo di casale indipendente con giardino di 1.500 mq con pozzo.
L'immobile è internamente da ristrutturare ed esternamente da sistemare ( tetto rifatto negli anni 2000). Al piano terra abbiamo cinque vani ad uso cantina allo stato grezzo con possibilità di fare cambio d'uso a civile abitazione e realizzare secondo appartamento; il piano primo è invece composto da soggiorno/cucina con camino, quattro camere matrimoniali e bagno finestrato.
Completano la proprietà annessi per totali 150 mq, anch'essi con possibilità di fare cambio d'uso a civile abitazione.
Ideale anche come struttura ricettiva. Posizione comoda ad 1 km da Santa Maria degli Angeli.

Mostra tutto

Nelle vicinanze

Trasporto pubblico Trasporto pubblico
stazione di Assisi
stazione di Assisi
2,1 Km
Trasporto pubblico
960 m
Assisi, Santa Maria degli Angeli
Assisi, Santa Maria degli Angeli
2,1 Km
Ricariche auto elettriche Ricariche auto elettriche
Driwe c/o CTF WELLNESS
1,5 Km
Eneldrive Santa Maria degli Angeli
2,0 Km
Scuole Scuole
Scuole
990 m
Facoltà di Economia Del Turismo
1,4 Km
Scuola Materna Statale
2,1 Km
Scuola Media statale Giovanni XXIII
2,2 Km
Istituto Tecnico Industriale e Istituto Tecnico Professionale
2,3 Km
Farmacia Farmacia
Farmacia Comunale
1,7 Km
Farmacia Angelini
2,3 Km
Farmacia
2,7 Km
Farmacia Magister
2,8 Km
Supermercati Supermercati
Conad SuperStore
1,7 Km
SMA
1,7 Km
Todis
1,8 Km
SuperConti
1,9 Km
Conad City
2,1 Km
Negozi Negozi
Original Marines
1,7 Km
I Portali past. panet.
1,9 Km
Alimentari Marilena
2,0 Km
Alimentari
2,0 Km
Pasticceria Sandro
2,3 Km
Bar Bar
Bar
970 m
New My Way
2,0 Km
Bar della Stazione
2,1 Km
Bar Pasticceria Lollini
2,2 Km
Bar
2,5 Km
Ristoranti Ristoranti
Il Girasole
1,1 Km
Pizzeria La Tavola Rotonda
1,7 Km
Ristorante Antonelli Franco
1,8 Km
Trattoria degli Angeli
1,9 Km
Sorella Luna
2,0 Km
Mostra tutto

Caratteristiche

Rif.:
61112476
Piano:
2 di 2 (Piano su più livelli)
Camere da letto:
5
Arredamento:
Assente
Condizionamento:
Assente
Ascensore:
No
Mostra tutto
Prezzo Prezzo
€ 230.000
Rata mutuo Rata mutuo
€ 1.097 / mese
Spese annue Spese annue
€ 0
Proponi il tuo prezzoProponi il tuo prezzo

Classe Energetica

G
G
G
G
G
G
G
G
G
EP globale non rinnovabile:
0.00 kW h/m² anno
EP globale rinnovabile:
0.00 kW h/m² anno
EP invernale del fabbricato:
EP estiva del fabbricato:
Anno di costruzione:
1950
Riscaldamento:
Autonomo
Tipo impianto:
A radiatori
Tipo alimentazione:
GPL

Ti interessa visionare l'immobile?

Fissa un appuntamento  Fissa un appuntamento

Richiedi informazioni

Clicca su Leggi per aprire l'informativa
* Questi campi sono obbligatori

Calcola il tuo mutuo

Semplice e senza impegno
Anticipo

( % )
Mutuo

( % )

pochi semplici passi

inserisci i tuoi dati
Questionario completato
Grazie per aver richiesto un appuntamento senza impegno con un nostro Consulente del Credito e Assicurativo.

Hai inserito correttamente tutti i dati necessari e a breve riceverai una e-mail con un link da convalidare per inviare i tuoi dati.
Affiliato
Studio Assisi Srls
Via Los Angeles, 50 06081 Assisi (PG)

Il nostro staff


  • Cristiano Gnavolini
    Affiliato

  • Giuliano Rossi
    Responsabile

  • Marco Fimiani
    Responsabile

  • Valentina Bangoni
    Coordinatrice

  • Francesca Fimiani
    Collaboratrice

  • Andrea Micco
    Collaboratore

  • Luca Passeri
    Collaboratore
Via Los Angeles, 50 06081 Assisi (PG)
Zona: S.M. degli Angeli-Petrignano-Palazzo-Rivotorto-Tordandrea-Castelnuovo-Capodacqua
Mostra su mappa
Orari: lunedì-venerdì: 09.00 - 13.00 // 15.30 - 20.00 sabato: 09.00 - 13.00
Affiliato
Studio Assisi Srls
Via Los Angeles, 50 06081 Assisi (PG)

2026 Tecnocasa Franchising S.p.A. - P. IVA 08365160152 - Via Monte Bianco 60/A 20089 Rozzano (MI). Ogni agenzia ha un proprio titolare ed è autonoma. Privacy policy | Policy utilizzo | Cookie policy