Multilocale in affitto

Assisi, Via protomartiri francescani - Santa Maria Degli Angeli
€ 1.700 / mese
3 locali 3 locali
172 Mq 172 Mq
2 bagni 2 bagni

Multilocale in affitto

Assisi, Via protomartiri francescani - Santa Maria Degli Angeli

Descrizione annuncio

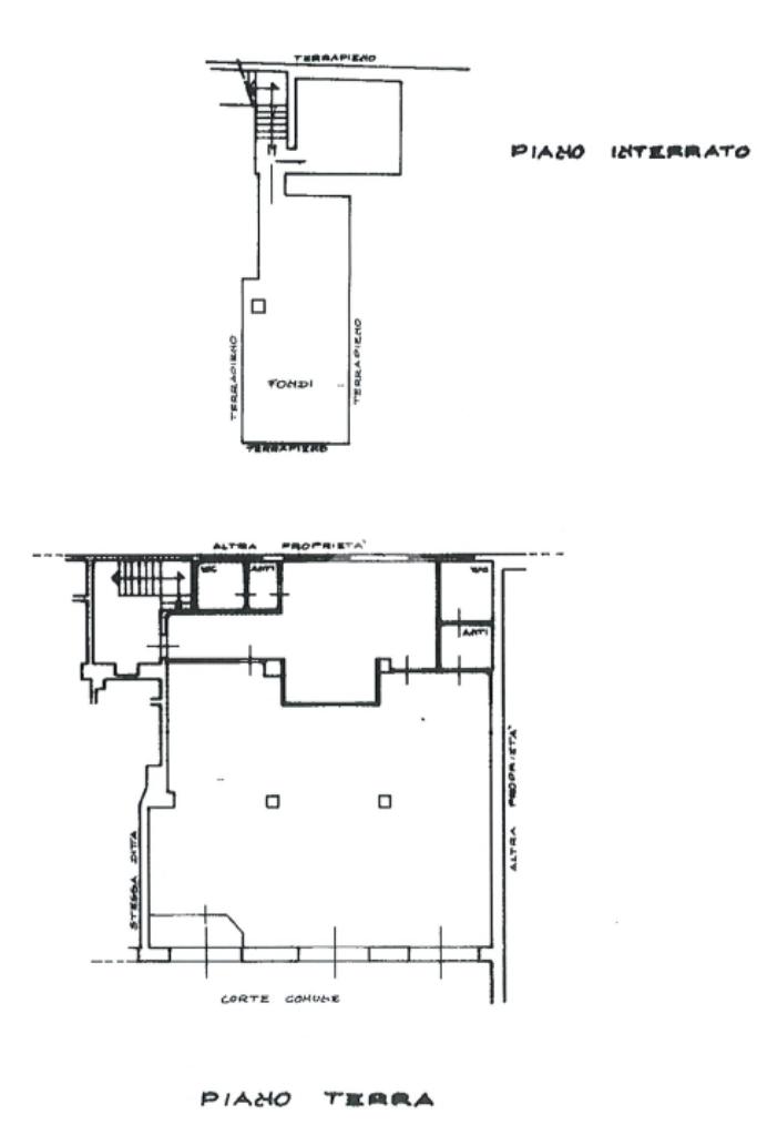
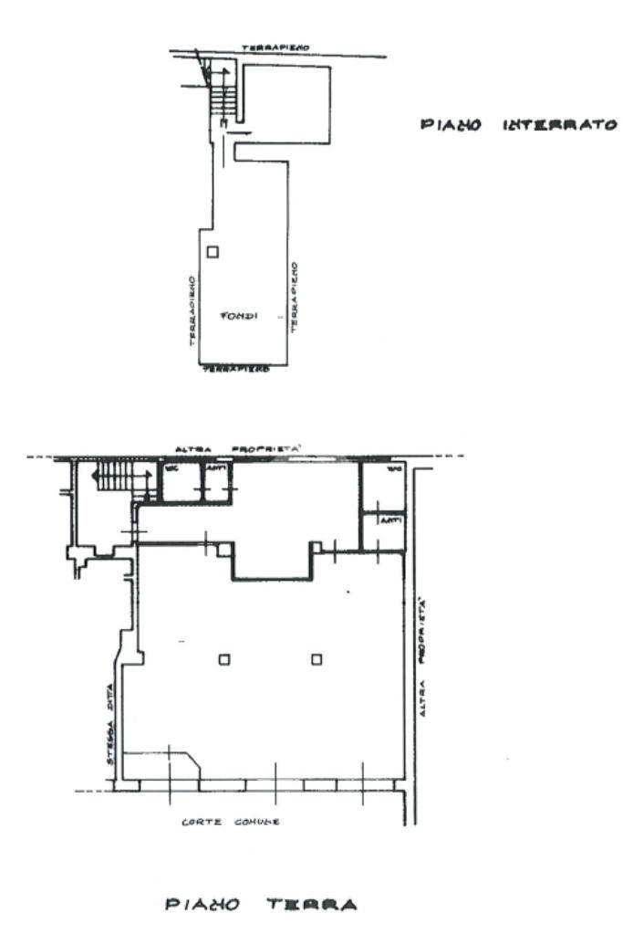
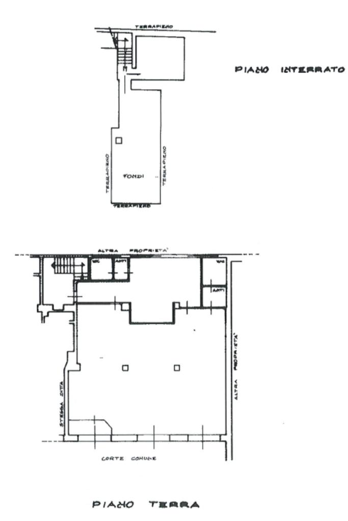
In zona centralissima di Santa Maria degli Angeli, in posizione unica fronte Basilica, disponiamo di ampio locale commerciale posto al piano terra con tre vetrine fronte strada.

Si compone di ingresso, ampia sala, cucina di 50 mq e dispensa. Bagno a norma per disabili e bagno di servizio. Due cantine e magazzino al piano interrato collegati tramite scala interna. Grazie alla sua configurazione e alla posizione strategica, il locale si presta per diversi tipi di attività, rendendolo una scelta ideale per chi cerca un ambiente dinamico e adattabile alle proprie esigenze professionali. La vicinanza ai principali servizi e la facilità di accesso completano l'offerta di questo interessante spazio.

Mostra tutto

Nelle vicinanze

Trasporto pubblico Trasporto pubblico
stazione di Assisi
stazione di Assisi
320 m
Assisi, Santa Maria degli Angeli
Assisi, Santa Maria degli Angeli
340 m
Trasporto pubblico
370 m
Ricariche auto elettriche Ricariche auto elettriche
Eneldrive Santa Maria degli Angeli
360 m
Driwe c/o CTF WELLNESS
950 m
Assisi Vittorio Emanuele II
2,4 Km
Assisi Marconi
2,6 Km
Scuole Scuole
Scuola Media statale Giovanni XXIII
330 m
Scuola Materna Statale
620 m
Scuola Elementare e Media Statale
630 m
Facoltà di Economia Del Turismo
720 m
Istituto Tecnico Industriale e Istituto Tecnico Professionale
790 m
Farmacia Farmacia
Farmacia Comunale
500 m
Farmacia Angelini
530 m
Parafarmacia Conad
2,1 Km
Angelini
2,7 Km
Parafarmacia
2,7 Km
Supermercati Supermercati
Conad City
440 m
Conad SuperStore
440 m
SMA
570 m
SuperConti
580 m
Emi
680 m
Negozi Negozi
Alimentari
390 m
Alimentari Marilena
450 m
Original Marines
460 m
I Portali past. panet.
550 m
Negozi
730 m
Bar Bar
Bar della Stazione
360 m
New My Way
420 m
Bar Pasticceria Lollini
440 m
Bar
1,1 Km
Bar Rocchi
1,1 Km
Ristoranti Ristoranti
Biagetti
100 m
Pizzeria San Francesco
120 m
Santucci Trattoria e Camere
180 m
Trattoria da Elide
200 m
New Generation Food
230 m
Mostra tutto

Caratteristiche

Rif.:
61189185
Piano:
Terra di 3
Totale piani:
3
Arredamento:
Assente
Condizionamento:
Autonomo
Ascensore:
No
Mostra tutto
Prezzo Prezzo
€ 1.700 / mese
Spese annue Spese annue
€ 0

Classe Energetica

G
G
G
G
G
G
G
G
G
EP globale non rinnovabile:
0.00 kW h/m² anno
EP globale rinnovabile:
0.00 kW h/m² anno
EP invernale del fabbricato:
EP estiva del fabbricato:
Anno di costruzione:
1965
Riscaldamento:
Autonomo
Tipo impianto:
A radiatori
Tipo alimentazione:
Aria

Ti interessa visionare l'immobile?

Fissa un appuntamento  Fissa un appuntamento

Richiedi informazioni

Clicca su Leggi per aprire l'informativa
* Questi campi sono obbligatori
Affiliato
Studio Assisi Srls
Via Los Angeles, 50 06081 Assisi (PG)

Il nostro staff


  • Cristiano Gnavolini
    Affiliato

  • Giuliano Rossi
    Responsabile

  • Marco Fimiani
    Responsabile

  • Valentina Bangoni
    Coordinatrice

  • Francesca Fimiani
    Collaboratrice

  • Andrea Micco
    Collaboratore

  • Luca Passeri
    Collaboratore
Via Los Angeles, 50 06081 Assisi (PG)
Zona: S.M. degli Angeli-Petrignano-Palazzo-Rivotorto-Tordandrea-Castelnuovo-Capodacqua
Mostra su mappa
Orari: lunedì-venerdì: 09.00 - 13.00 // 15.30 - 20.00 sabato: 09.00 - 13.00
Affiliato
Studio Assisi Srls
Via Los Angeles, 50 06081 Assisi (PG)

2026 Tecnocasa Franchising S.p.A. - P. IVA 08365160152 - Via Monte Bianco 60/A 20089 Rozzano (MI). Ogni agenzia ha un proprio titolare ed è autonoma. Privacy policy | Policy utilizzo | Cookie policy